Appartement À Louer T2


Réf. 2532
OLLIOULES - 83190

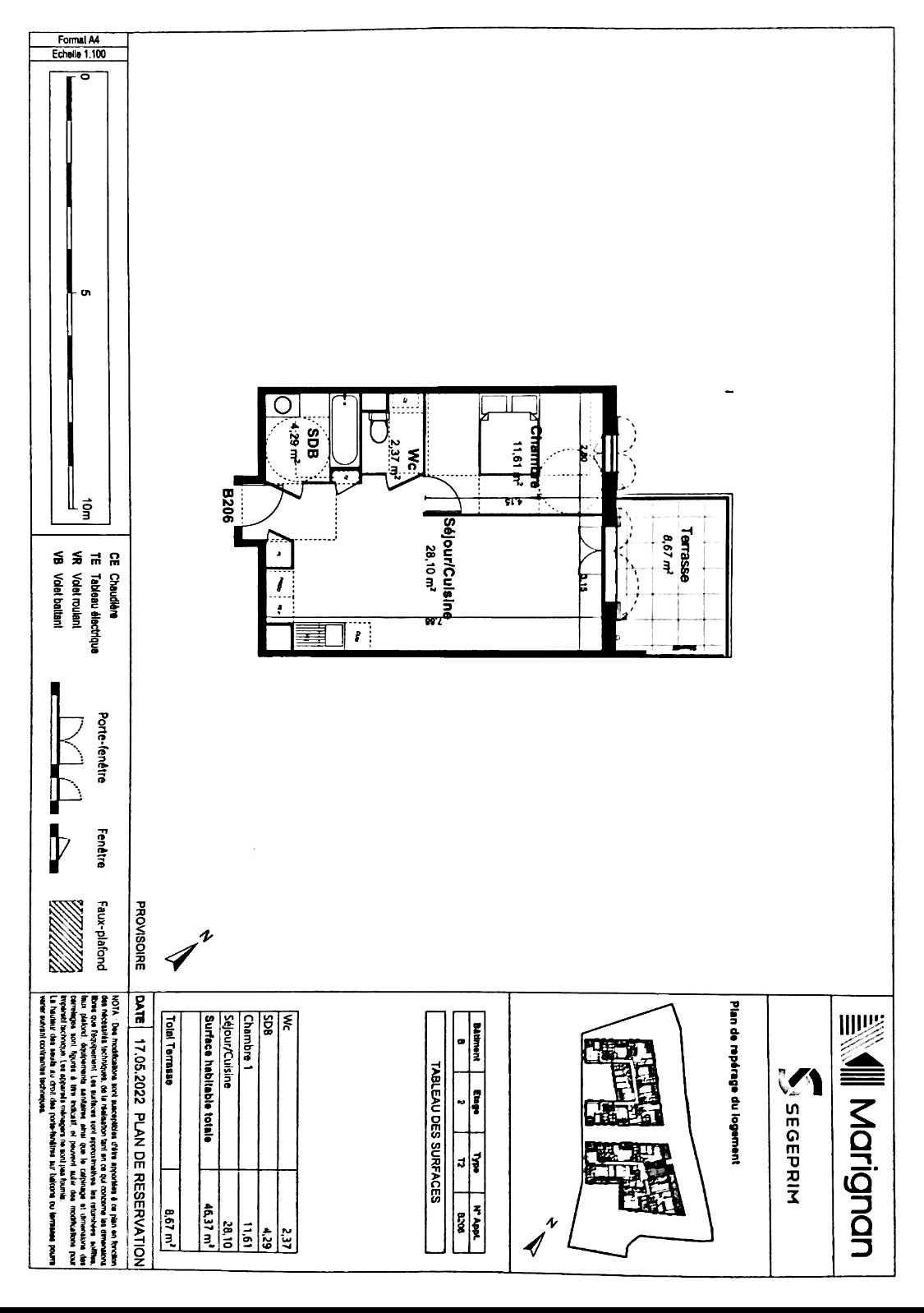
L'Agence Cabanis vous propose à la location dans cette résidence neuve cet appartement de T2 de 46.37 M2 situé dans une résidence neuve avec ascenseur au cœur du village d'Ollioules au 2ème étage. Ce logement comprend une entrée avec placards, séjour avec coin cuisine aménagée (installée début mai) donnant sur une loggia de 8m2, chambre, salle d'eau et wc séparé. DPE EN COURS Place de parking 59 privative en sous sol. Dispositif Pinel avec plafonds de ressources D'autres logements du même type dans la résidence bientôt à la location !! Alors contactez vite Estelle BASSO AGENCE CABANIS OLLIOULES 0608.873419

819 € /mois
Charges comprises

Les caractéristiques DEP / GES sont en cours de réalisation...

Ascenseur
Oui
Nombre de pièces
2
Nombre de chambres
1
Surface habitable
46 m2
Date de libération
15/05/2025
Année de construction
2025
Nombre de WC
1
Nombre de salles de bains
1
Nombre de parking intérieurs
1
Nombre terrasses
1
Surface terrasses
8 m2
Imprimer

Agence Ollioules (Gestion & Location)

212 Chemin Des Delphiniums - Espace Mermoz 83190 Ollioules
Service Transactions
Service Locations
Service Gestion